
梦之城规划效果图
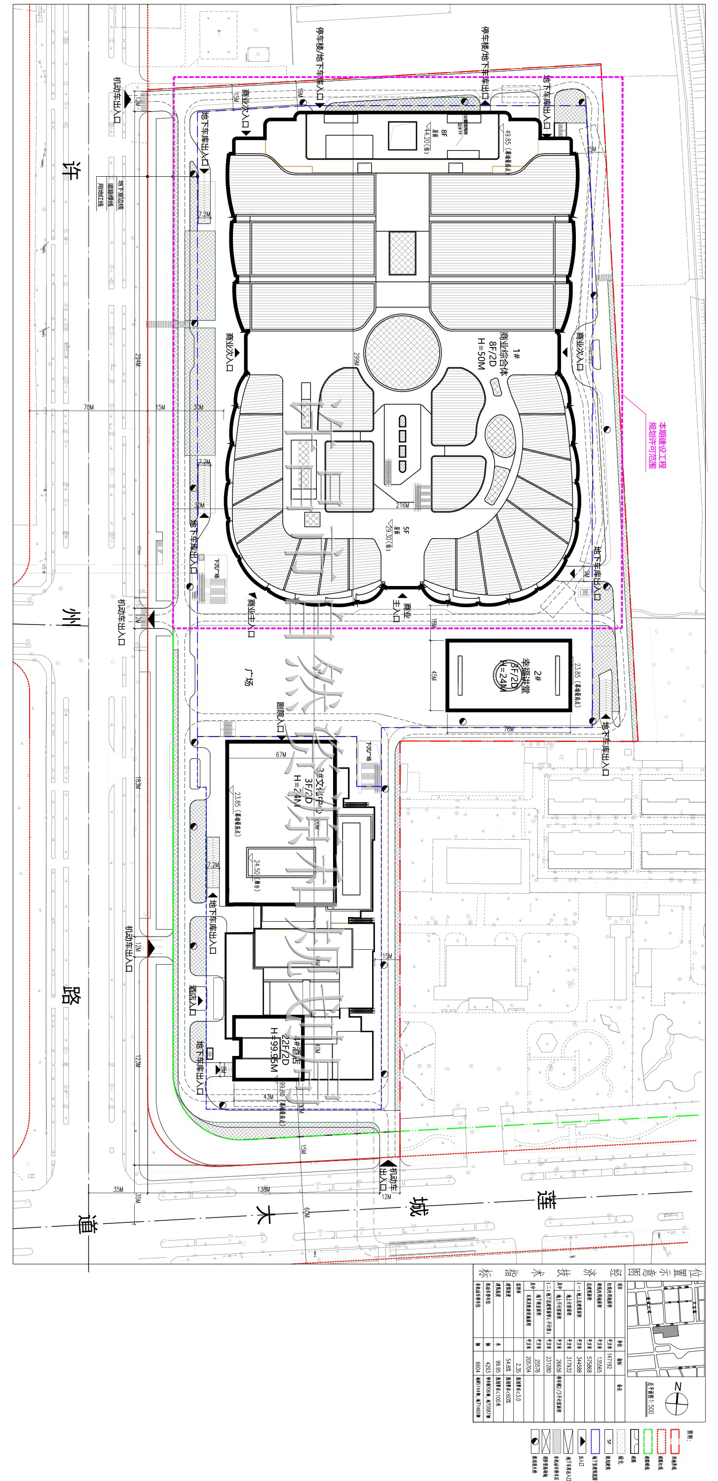
4月7日,备受关注的许昌胖东来梦之城项目一期建设规划开始公示。依据规划,项目一期建筑面积46.7万平方米,3327个停车位。

梦之城工地外的规划公示牌
胖东来创始人于东来曾在社交平台发布信息称,梦之城是胖东来品牌成立以来投资规模最大的单体项目,计划总投资 50 亿元,是一个超大型综合体,将涵盖百货、超市、电器、珠宝、电影、餐饮、茶叶、电玩以及酒店等业态。
此次规划显示,梦之城项目一期主要建设商业综合体,建筑主体长299米,宽216米,高度50米,8层。一期之外,未来还将建设幸福讲堂、文化中心、酒店等主要部分。

梦之城一期建设规划公示信息
于东来曾介绍,梦之城总建筑面积约42万平方米。根据此次公示的规划,梦之城项目总建筑面积575868.00平方米,一期面积467386.30平方米,在规模方面超过于东来此前表述的42万平方米。
停车位方面,于东来曾表示,为应对停车难问题,梦之城预计总停车位数量超8000个。根据此次公示的规划,梦之城项目的总停车位数量4293个,一期停车位数量3327个。

梦之城一期建设规划
(河南日报社视觉全媒体中心·大河报记者 任华飞 李思远)
上一篇:“1314”激活乡村振兴新动能