郑州山姆会员店效果图来了!建筑方案征求意见
创始人
2025-10-22 15:01:08
0

【大河财立方消息】 10月22日,郑州市自然资源和规划局郑东新区分局公告,就山姆会员商店建设项目建筑方案征求意见。

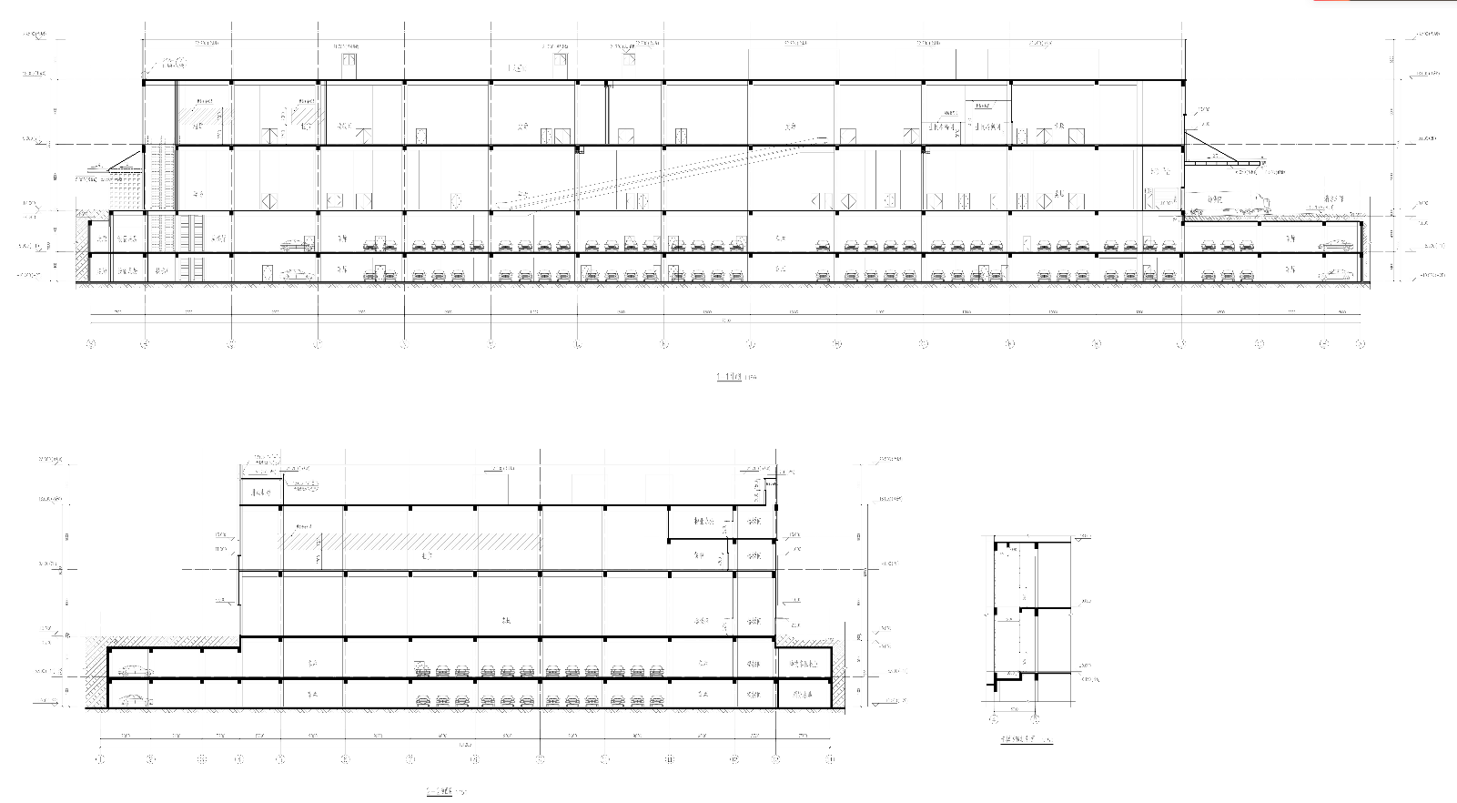
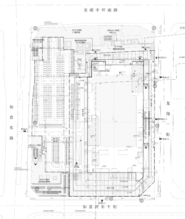
山姆会员商店项目位于如意东路东、如意河东十街北,总占地约44.01亩,由商店和交通服务场站2个块地构成,其中:商店占地约32.26亩,总建筑面积约5.93万平方米(地上建筑面积约2.49万㎡,地下建筑面积约3.44万平方米);地上建筑层数两层,主要功能为卖场、配套用房及卸货区;地下两层主要功能为车库及设备用房。

山姆会员店建筑高度23.7米,绿地率10.05%,机动车停车位724个,预留充电车位102个。

本次征求意见文件涉及总平面图、立面图、剖面图、建筑单体效果图、鸟瞰图等。

相关内容

热门资讯

今日分享{腾讯掼蛋}开挂器!确... 今日分享{腾讯掼蛋}开挂器!确实真的有挂您好,腾讯掼蛋这个游戏其实有挂的,确实是有挂的,需要了解加客...
今日重磅消息{新蛮王炸金花}真... 家人们!今天小编来为大家解答新蛮王炸金花透视挂怎么安装这个问题咨询软件客服徽9784099的挂在哪里...
“试点取消中考”?误读背后有焦... “成都市试点取消中考”“教育大改革,部分地区试点取消中考”“天塌了中考要取消了”……近日,网络上出现...
今日重大发现{十三十三水}到底... 您好:十三十三水这款游戏可以开挂,确实是有挂的,需要了解加客服微信【9784099】很多玩家在这款游...
重磅消息{南通长牌}辅助开挂神... 家人们!今天小编来为大家解答南通长牌透视挂怎么安装这个问题咨询软件客服徽4282891的挂在哪里买很...
“鸡排哥”将去南京炸鸡排 国庆节前后江西景德镇一名炸鸡排的摊主爆火出圈这名瘦小的中年男子被网友亲切地称为“鸡排哥”每天在他摊位...
从交火到停火:塔利班与印度泯恩... 从10月9日巴基斯坦突然向阿富汗多地发起空袭,到10月19日两国在卡塔尔首都多哈达成停火协议,本轮再...
最新一款{赫麒众游}怎么开挂!... 家人们!今天小编来为大家解答赫麒众游透视挂怎么安装这个问题咨询软件客服徽9784099的挂在哪里买很...
今日分享{红豆大厅}是不是有挂... 今日分享{红豆大厅}是不是有挂!原来真的有挂您好,红豆大厅这个游戏其实有挂的,确实是有挂的,需要了解...
今日重磅消息{盼盼十三水}是不... 今日重磅消息{盼盼十三水}是不是有挂!确实真的有挂您好,盼盼十三水这个游戏其实有挂的,确实是有挂的,...